
主要材质:地面柔光砖 | 白色有机涂料 | 12mm超白无边框玻璃 | 平框门等等,其他常规材料等。
设计理念:以极简的风格来完成整个办公室大楼的设计,以白色为主色调,黄橙棕色为个中点缀,营造出非常简洁而高级的感觉,除了一楼做前台大堂加食堂,二楼为作业车间,三楼为办公室区域,各种功能的区域模块设计一应俱全,开放办公区大大加大协同效率,整体轻松自然的风格让在这里上班的员工也能感到心情的舒畅。



























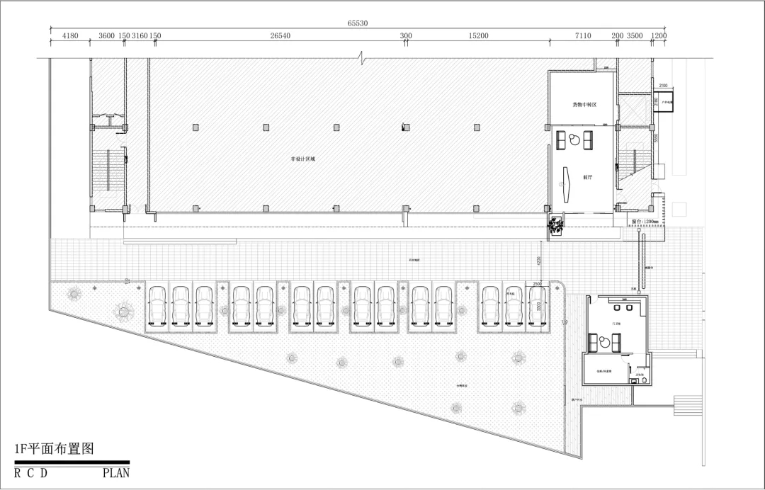
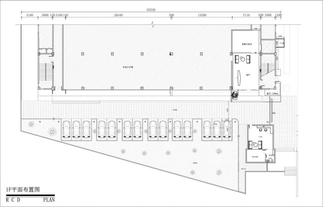
-1楼平面设计方案-

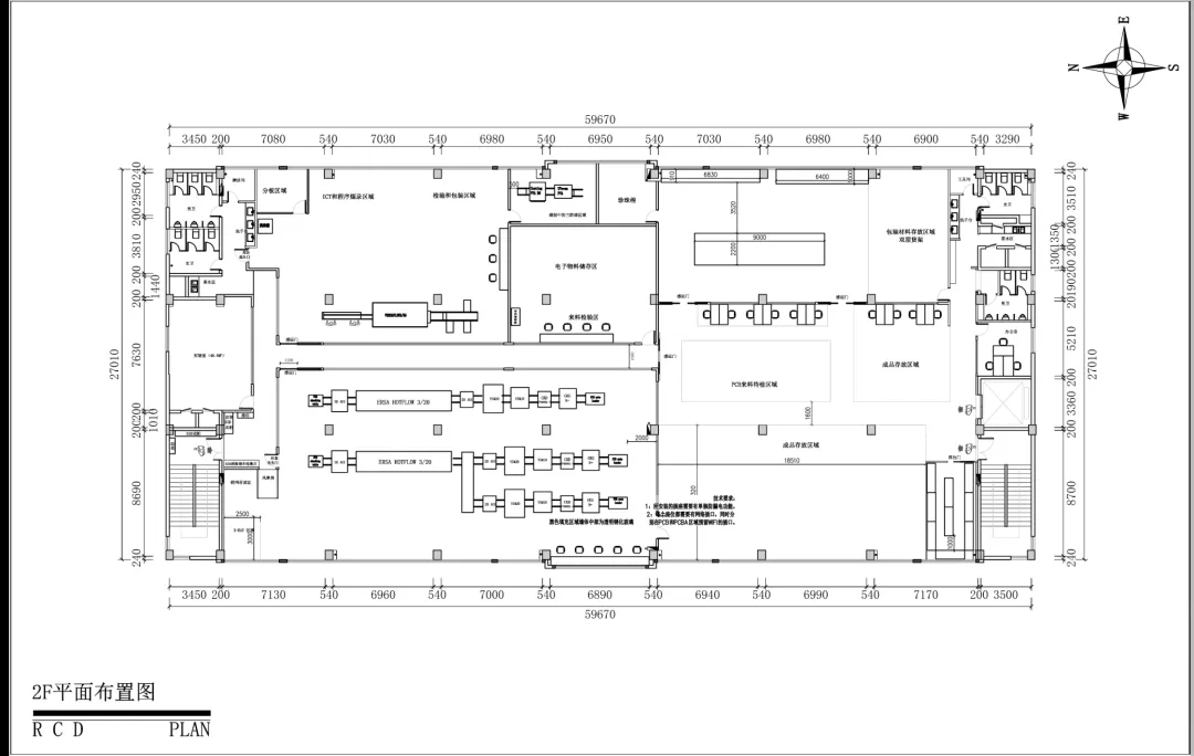
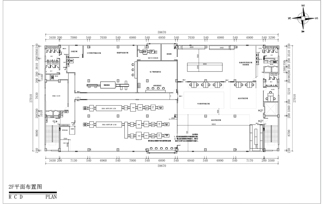
-2楼平面设计方案-

-3楼平面设计方案-



-材质选择-
图文来自网络
仅供交流学习
如有侵权请联系处理
-END-
更多信息请关注公众号
业务咨询电话:13310820278 / 0769-23287701
传真/FAX:0769-23287702
